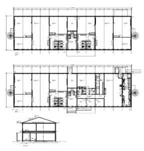
Предпродажа - модульный комплекс 1200м2

- 26 модулей, площадь около 43 м2
- Неиспользованный
- Узнайте больше и запросите цену
Цена 3500€ за единицу / вкл. НДС.



Попросите предоставить вам транспортное предложение.